IMMEUBLE ORANGE MARSEILLE
Les évolutions technologiques font que les batiments techniuqes d'Orange (ex France Telecom) demandent de moins en moins de place. C'est le cas de ce bâtiment idéalement placé à proximité immédiate de la gare St Charles, à l'arrivés de l'autoroute Nord dans un quartier en pleine mutation au coeur de la ville.Une partie de l'ilot sera donc conservée et sa vocation technique conservée. L'autre partie sera démlolie et transformée en bureaux.
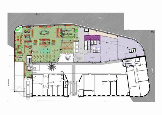
La société Orange a donc décidé de s'y implanter. Pour répondre aux exigences de la politique immobilère d'Orange, ce bâtiment de bureaux sera flexible et innovant pour pouvoir s'adapter aux nouvelles formes de travaill. Des espaces de détente de réunion seront disposés de manière à favoriser les relations entre les utilisateurs. Un restaurant inter entreprise de grande qualité sera implanté au rez de chaussée. Il souvrira sur la cour intérieure Cet immeuble sera labellisé HQE bâtiment durable
L
Surf HO : 13 000 m2
M.O : ORANGE SA
BET: TPFI
Coût: 30 000 000 €HT









